С правилами ознакомлен(а) Авторизация
Авторизация нужна для сохраниения Вашего "Избранного".
Войти через:
  • :
    :
    Проект европейского особняка на 322 кв. м с пристроенным большим гаражом
    :
    :
    Проект европейского особняка на 322 кв. м с пристроенным большим гаражом
  • 4M7219 Проект европейского особняка на 322 кв. м с пристроенным большим гаражом

    Артикул4M7219
    Количество этажей:3
    Общая площадь:322.00 м2
    Жилая площадь:146.00 м2
    Высота дома:7.00 м
    Высота потолка:2.80 м
    Угол наклона кровли:35 °
    Материалы:

    Ваш помощник свяжется с Вами в ближайшее время.

    Заполни

    Ваши данные защищены

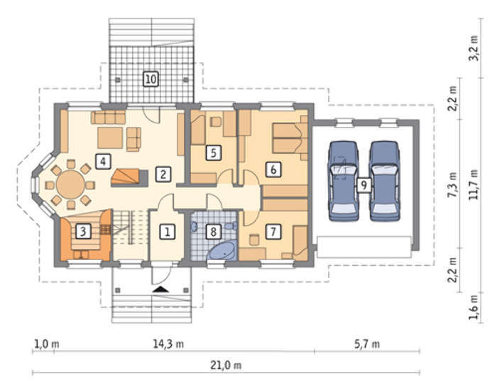
Планы этажей
Фасады и расположение на участке
Состав проекта
Дополнительные пакеты

Проект европейского особняка на 322 кв. м с пристроенным большим гаражом 4M7219

Комментарии
Чтобы оставить комментарий, Вы должны либо заполнить поля ниже, либо авторизироваться на сайте.
Загрузить фото, до 5 штук
Ваша оценка:
Подобные
ЗАКАЗАТЬ
Категории
© 2010-2021 Dom4M. Все права защищены
This site is protected by reCAPTCHA and the Google Privacy Policy and Terms of Service apply